







Blevedere Gallery - Fabrica De Glucoza | Spatiu Comercial - Vitrina 7,5ML
Bucuresti, Aviatiei
4.050€ + TVA
Camere
1
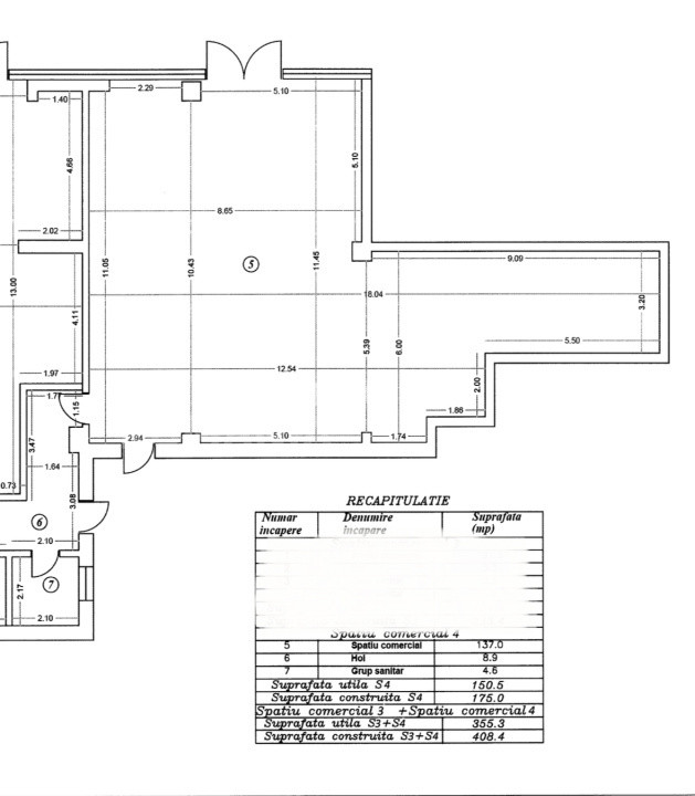
Suprafata utila
150 mp
An constructie
2024
- ID:P17156
- Nr. camere:1
- S. utila:150.00 mp
- S. vitrina:7.50 m
- Front stradal:8.65 m
- Comp.:Open space
- Nr. bai:1
- Pret parcare:50€ + TVA
- An constructie:2024
- Structura rezistenta:Beton
- Tip imobil:Bloc
- Regim inaltime:P+2
Descriere
Spațiu comercial de excepție, parte din Galeriile Belvedere, situat pe Șos. Fabrica de Glucoză, într-o zonă cu trafic intens și vizibilitate maximă, într-un pol comercial în continuă dezvoltare.
📐 Vitrina: 7,5 ML
🏗 Clădire nouă, finalizată în 2024, cu fațadă modernă din sticlă și înălțime generoasă sub grindă de 5,5 m
Dotări și facilități:
Instalații electrice și sanitare complete
Contor individual
Autorizație ISU
Iluminat natural generos datorită fațadei vitrate
4/5 locuri de parcare, contra cost (50euro/ Loc) disponibile pe breteaua auto paralelă, aflate în proprietate
📍 Poziționare strategică – spațiul face parte din ansamblul Galeriile Belvedere, format din 25 de spații comerciale la parterul celor 13 blocuri, ocupate deja de branduri de renume:
Kaufland, Mobexpert, Casa Magică, Natuzzi, Sophia, Art Granit, Arthitek, Libra Bank, Mega Image, Bang & Olufsen, Husqvarna, Sweat Fitness, ABC Car showroom auto etc.
✅ Avantaje majore:
Vizibilitate maximă la bulevard, cu deschidere de 7,5 m
Vecinătatea unor branduri consacrate
Trafic pietonal și auto ridicat
Potrivit pentru showroom, retail, servicii bancare, clinici medicale, fitness sau gastronomie
_____________________________________________________
Global Home Romania, este o firmă în schimbare de jocuri pe piață imobiliară din România ce se afla intr-o expansiune rapidă. Modelul hibrid între tehnologie și interacțiune umană alături de colaboratorii firmei, inspiră constant încredere. Având o abordare de marketing profesională și îndrăzneță a ridicat atenția asupra modului în care oamenii se gândesc la imobiliare.
Global Home Romania continuă să se dezvolte cu succes în domeniul imobiliar, reușind să adune constant parteneri și colaboratori de încredere. Cu sediul în București, Global Home Romania, a apărut ca o firmă de încredere imobiliară ce își propune constant să livreze servicii de calitate. S-a lansat ca un strălucitor ambasador al Bucureștiului și continuă să reprezinte cu succes diverse proprietăți din capitala României în colaborare cu cei mai sofisticați cumpărători și investitori.
Citeste mai mult
📐 Vitrina: 7,5 ML
🏗 Clădire nouă, finalizată în 2024, cu fațadă modernă din sticlă și înălțime generoasă sub grindă de 5,5 m
Dotări și facilități:
Instalații electrice și sanitare complete
Contor individual
Autorizație ISU
Iluminat natural generos datorită fațadei vitrate
4/5 locuri de parcare, contra cost (50euro/ Loc) disponibile pe breteaua auto paralelă, aflate în proprietate
📍 Poziționare strategică – spațiul face parte din ansamblul Galeriile Belvedere, format din 25 de spații comerciale la parterul celor 13 blocuri, ocupate deja de branduri de renume:
Kaufland, Mobexpert, Casa Magică, Natuzzi, Sophia, Art Granit, Arthitek, Libra Bank, Mega Image, Bang & Olufsen, Husqvarna, Sweat Fitness, ABC Car showroom auto etc.
✅ Avantaje majore:
Vizibilitate maximă la bulevard, cu deschidere de 7,5 m
Vecinătatea unor branduri consacrate
Trafic pietonal și auto ridicat
Potrivit pentru showroom, retail, servicii bancare, clinici medicale, fitness sau gastronomie
_____________________________________________________
Global Home Romania, este o firmă în schimbare de jocuri pe piață imobiliară din România ce se afla intr-o expansiune rapidă. Modelul hibrid între tehnologie și interacțiune umană alături de colaboratorii firmei, inspiră constant încredere. Având o abordare de marketing profesională și îndrăzneță a ridicat atenția asupra modului în care oamenii se gândesc la imobiliare.
Global Home Romania continuă să se dezvolte cu succes în domeniul imobiliar, reușind să adune constant parteneri și colaboratori de încredere. Cu sediul în București, Global Home Romania, a apărut ca o firmă de încredere imobiliară ce își propune constant să livreze servicii de calitate. S-a lansat ca un strălucitor ambasador al Bucureștiului și continuă să reprezinte cu succes diverse proprietăți din capitala României în colaborare cu cei mai sofisticați cumpărători și investitori.
Specificatii
Curent
Apa
Canalizare
Aer conditionat
Ventiloconvectoare
Izolatie Exterior
Stefania Paun
0748919374
Esti interesat de aceasta proprietate ?