















Casa 5 cam 130MP | Baneasa | Curte | Utilata si mobilata | 2 locuri parcare |
Bucuresti, Baneasa
420.000€
Camere
5
Suprafata utila
130 mp
Suprafata construita
176 mp
Bai
2
An constructie
2010
- ID:P15950
- Nr. camere:5
- Nr. dormitoare:3
- S. utila:130.00 mp
- S. terase:15.00 mp
- S. construita:176.00 mp
- S. teren:370.00 mp
- Nr. bucatarii:1
- Nr. bai:2
- Nr. balcoane:2
- Nr. parcari:2
- An constructie:2010
- Structura rezistenta:Beton
- Regim inaltime:P+1
- Orientare:Est-Vest
Descriere
Alexandru Popovici ^ Global Home Romania ^ RealEstate ^ Imobiliare:
Casa 5 cam 130MP | Baneasa | Curte | Utilata si mobilata | 2 locuri parcare |
Vă propunem spre vânzare un imobil tip vilă P+1+Pod, situat într-o zonă exclusivistă și liniștită, chiar la liziera Pădurii Băneasa, în Sector 1 – zona de Nord a Bucureștiului. Proprietatea beneficiază de acces rapid către Mall Băneasa și întreaga zonă comercială adiacentă (Carrefour, Ikea, Mobexpert, Mega Image, Metro, Selgros, Dedeman, BricoDepot – toate la 3 minute distanță).
În imediata apropiere se află școli și grădinițe de prestigiu, un spital nou în construcție, Grădina Zoologică (5 minute), stație de autobuz în fața proprietății și viitoarea stație de metrou „Paris” (aflată în construcție, la doar 300 m). Cartierul este privat, cu vecinătăți sigure și multiple locuri de parcare.
Caracteristici:
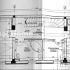
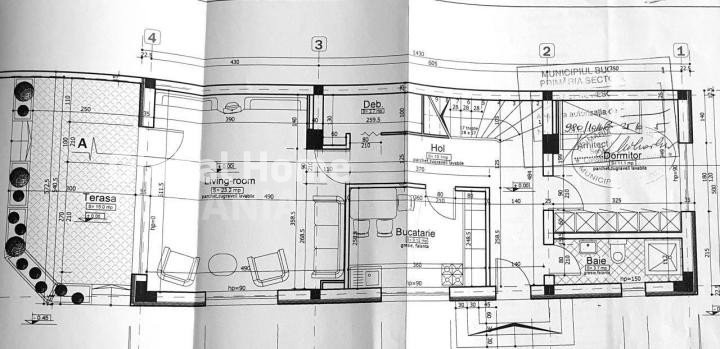
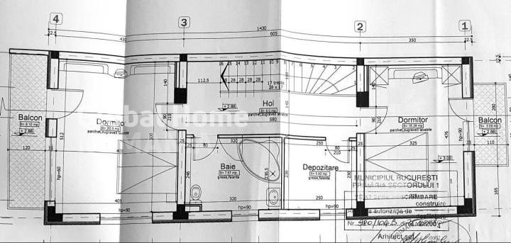
- Suprafață utilă totală: 130 mp + terasă
- Suprafață construită desfășurată: 158 mp + terasă de 18 mp
- Teren: 370 mp
- Regim de înălțime: P+1+Pod
- Compartimentare: 5 camere (3 dormitoare, 1 birou), 2 băi, bucătărie închisă, debara, 2 balcoane și terasă orientată spre pădure
- Pod pe toată suprafața etajului, cu planșeu din beton armat – pretabil pentru mansardare sau etajare (conform PUZ existent)
- Bucătărie complet mobilată și utilată cu echipamente Bosch
- Centrală termică proprie
- Aer condiționat
- An construcție: 2010
- Orientare Est-Vest
O alegere ideală pentru cei care caută intimitate, liniște, aer curat și totodată proximitate față de toate facilitățile urbane.
Pentru mai multe informații sau pentru programarea unei vizionări, nu ezitați să mă contactați.
_____________________________________________________
Global Home Romania, este o firmă în schimbare de jocuri pe piață imobiliară din România ce se afla intr-o expansiune rapidă. Modelul hibrid între tehnologie și interacțiune umană alături de colaboratorii firmei, inspiră constant încredere. Având o abordare de marketing profesională și îndrăzneță a ridicat atenția asupra modului în care oamenii se gândesc la imobiliare.
Global Home Romania continuă să se dezvolte cu succes în domeniul imobiliar, reușind să adune constant parteneri și colaboratori de încredere. Cu sediul în București, Global Home Romania, a apărut ca o firmă de încredere imobiliară ce își propune constant să livreze servicii de calitate. S-a lansat ca un strălucitor ambasador al Bucureștiului și continuă să reprezinte cu succes diverse proprietăți din capitala României în colaborare cu cei mai sofisticați cumpărători și investitori.
Citeste mai mult
Casa 5 cam 130MP | Baneasa | Curte | Utilata si mobilata | 2 locuri parcare |
Vă propunem spre vânzare un imobil tip vilă P+1+Pod, situat într-o zonă exclusivistă și liniștită, chiar la liziera Pădurii Băneasa, în Sector 1 – zona de Nord a Bucureștiului. Proprietatea beneficiază de acces rapid către Mall Băneasa și întreaga zonă comercială adiacentă (Carrefour, Ikea, Mobexpert, Mega Image, Metro, Selgros, Dedeman, BricoDepot – toate la 3 minute distanță).
În imediata apropiere se află școli și grădinițe de prestigiu, un spital nou în construcție, Grădina Zoologică (5 minute), stație de autobuz în fața proprietății și viitoarea stație de metrou „Paris” (aflată în construcție, la doar 300 m). Cartierul este privat, cu vecinătăți sigure și multiple locuri de parcare.
Caracteristici:
- Suprafață utilă totală: 130 mp + terasă
- Suprafață construită desfășurată: 158 mp + terasă de 18 mp
- Teren: 370 mp
- Regim de înălțime: P+1+Pod
- Compartimentare: 5 camere (3 dormitoare, 1 birou), 2 băi, bucătărie închisă, debara, 2 balcoane și terasă orientată spre pădure
- Pod pe toată suprafața etajului, cu planșeu din beton armat – pretabil pentru mansardare sau etajare (conform PUZ existent)
- Bucătărie complet mobilată și utilată cu echipamente Bosch
- Centrală termică proprie
- Aer condiționat
- An construcție: 2010
- Orientare Est-Vest
O alegere ideală pentru cei care caută intimitate, liniște, aer curat și totodată proximitate față de toate facilitățile urbane.
Pentru mai multe informații sau pentru programarea unei vizionări, nu ezitați să mă contactați.
_____________________________________________________
Global Home Romania, este o firmă în schimbare de jocuri pe piață imobiliară din România ce se afla intr-o expansiune rapidă. Modelul hibrid între tehnologie și interacțiune umană alături de colaboratorii firmei, inspiră constant încredere. Având o abordare de marketing profesională și îndrăzneță a ridicat atenția asupra modului în care oamenii se gândesc la imobiliare.
Global Home Romania continuă să se dezvolte cu succes în domeniul imobiliar, reușind să adune constant parteneri și colaboratori de încredere. Cu sediul în București, Global Home Romania, a apărut ca o firmă de încredere imobiliară ce își propune constant să livreze servicii de calitate. S-a lansat ca un strălucitor ambasador al Bucureștiului și continuă să reprezinte cu succes diverse proprietăți din capitala României în colaborare cu cei mai sofisticați cumpărători și investitori.
Specificatii
Curent
Apa
Canalizare
Gaz
Centrala proprie
Calorifere
Aer conditionat
Izolatie Exterior
Izolatie Interior
Vopsea lavabila
Parchet
Gresie
Ferestre PVC
Usa intrare Metal
Usa interior Celulare
Bucatarie Mobilata
Complet mobilat
Curte
Alexandru Popovici
0736376006
Esti interesat de aceasta proprietate ?