















Panoramic View 16 Floor | 4 Rooms 154SQM + 2 Parking | One Verdi Park -Floreasca
Bucuresti, Floreasca
869.980€ + TVA
Camere
4
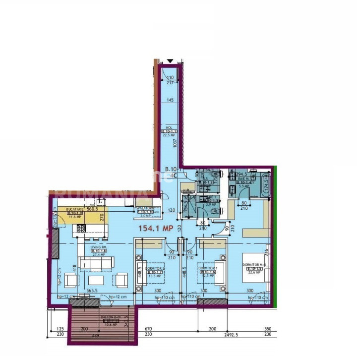
Suprafata utila
154 mp
Suprafata construita
185 mp
Etaj
Etaj 16
Bai
3
Parcari
2
- ID:P16612
- Nr. camere:4
- Nr. dormitoare:3
- S. utila:154.00 mp
- S. balcoane:8.00 mp
- S. construita:185.00 mp
- Comp.:Decomandat
- Confort:1
- Etaj:Etaj 16
- Nr. bucatarii:1
- Nr. bai:3
- Nr. balcoane:1
- Nr. parcari:2
- An constructie:2023
- Tip imobil:Bloc
- Regim inaltime:S+P+19
- Orientare:Est-Vest
Descriere
Cosmin Vasilache • Global Home Romania • Real Estate • Imobiliare • Floreasca
Reprezentare Exclusiva - 0% Comision
📍 Floreasca – One Verdi Park
🔑 Prezentare Generală
Disponibil pentru vânzare, acest apartament premium cu 4 camere este situat la etajul 16 al unuia dintre cele mai apreciate proiecte rezidențiale din București. Proprietatea se remarcă prin panoramă spectaculoasă către Parcul Verdi și zona de nord a orașului — o priveliște rară, complet deschisă.
Ideal pentru rezidență exclusivistă, familie modernă sau configurație hybrid living / home office.
📐 Detalii Tehnice
Suprafață totală: 154 mp
Compartimentare: 4 camere decomandate
Balcon panoramic: 8 mp
Etaj: 16
Băi: 3
Vitraje: suprafețe pe toată înălțimea nivelului
🛋️ Compartimentare & Funcționalitate
Living amplu și luminos, cu vitraje floor-to-ceiling și acces direct către balcon
Bucătărie modernă, pregătită pentru personalizare și integrarea electrocasnicelor premium
Dormitor matrimonial cu baie proprie și zonă dedicată de dressing
2 dormitoare secundare, ideale pentru copii, oaspeți, birou, bibliotecă sau hobby room
3 băi cu design contemporan
✨ Finisaje
Predare în standard Lemon Design, semnat de One United Properties
Calitate premium, ideală pentru amenajare personalizată
Lumină naturală pe tot parcursul zilei
🚗 Parcare
2 locuri de parcare subterană - Incluse in pret
🌿 Zona Floreasca – Barbu Văcărescu | Beneficii Rezidențiale & Comerciale
🏡 Rezidențial
Zonă premium, modernă, cu acces rapid la parcuri și facilități urbane
Comunitate selectă, siguranță și standard ridicat de locuire
Aproape de școli private, clinici medicale și zone verzi
🏙️ Business & Lifestyle
Acces pietonal către Promenada Mall
Pol de business Barbu Văcărescu – Floreasca
Restaurante, cafenele, servicii și wellness în cadrul ansamblului
🚇 Conectivitate
Metrou, tramvai, autobuz – acces rapid
Legături eficiente către Aviatorilor, Dorobanți, Pipera, Piața Victoriei
⭐ Concluzie
Un apartament rar disponibil, cu vedere panoramică, suprafețe generoase și poziționare excelentă într-unul dintre cele mai bine cotate ansambluri rezidențiale din București. Alegerea ideală pentru cei care caută lux, confort și investiție sigură.
_____________________________________________________
Global Home Romania, este o firmă în schimbare de jocuri pe piață imobiliară din România ce se afla intr-o expansiune rapidă. Modelul hibrid între tehnologie și interacțiune umană alături de colaboratorii firmei, inspiră constant încredere. Având o abordare de marketing profesională și îndrăzneță a ridicat atenția asupra modului în care oamenii se gândesc la imobiliare.
Global Home Romania continuă să se dezvolte cu succes în domeniul imobiliar, reușind să adune constant parteneri și colaboratori de încredere. Cu sediul în București, Global Home Romania, a apărut ca o firmă de încredere imobiliară ce își propune constant să livreze servicii de calitate. S-a lansat ca un strălucitor ambasador al Bucureștiului și continuă să reprezinte cu succes diverse proprietăți din capitala României în colaborare cu cei mai sofisticați cumpărători și investitori.
Citeste mai mult
Reprezentare Exclusiva - 0% Comision
📍 Floreasca – One Verdi Park
🔑 Prezentare Generală
Disponibil pentru vânzare, acest apartament premium cu 4 camere este situat la etajul 16 al unuia dintre cele mai apreciate proiecte rezidențiale din București. Proprietatea se remarcă prin panoramă spectaculoasă către Parcul Verdi și zona de nord a orașului — o priveliște rară, complet deschisă.
Ideal pentru rezidență exclusivistă, familie modernă sau configurație hybrid living / home office.
📐 Detalii Tehnice
Suprafață totală: 154 mp
Compartimentare: 4 camere decomandate
Balcon panoramic: 8 mp
Etaj: 16
Băi: 3
Vitraje: suprafețe pe toată înălțimea nivelului
🛋️ Compartimentare & Funcționalitate
Living amplu și luminos, cu vitraje floor-to-ceiling și acces direct către balcon
Bucătărie modernă, pregătită pentru personalizare și integrarea electrocasnicelor premium
Dormitor matrimonial cu baie proprie și zonă dedicată de dressing
2 dormitoare secundare, ideale pentru copii, oaspeți, birou, bibliotecă sau hobby room
3 băi cu design contemporan
✨ Finisaje
Predare în standard Lemon Design, semnat de One United Properties
Calitate premium, ideală pentru amenajare personalizată
Lumină naturală pe tot parcursul zilei
🚗 Parcare
2 locuri de parcare subterană - Incluse in pret
🌿 Zona Floreasca – Barbu Văcărescu | Beneficii Rezidențiale & Comerciale
🏡 Rezidențial
Zonă premium, modernă, cu acces rapid la parcuri și facilități urbane
Comunitate selectă, siguranță și standard ridicat de locuire
Aproape de școli private, clinici medicale și zone verzi
🏙️ Business & Lifestyle
Acces pietonal către Promenada Mall
Pol de business Barbu Văcărescu – Floreasca
Restaurante, cafenele, servicii și wellness în cadrul ansamblului
🚇 Conectivitate
Metrou, tramvai, autobuz – acces rapid
Legături eficiente către Aviatorilor, Dorobanți, Pipera, Piața Victoriei
⭐ Concluzie
Un apartament rar disponibil, cu vedere panoramică, suprafețe generoase și poziționare excelentă într-unul dintre cele mai bine cotate ansambluri rezidențiale din București. Alegerea ideală pentru cei care caută lux, confort și investiție sigură.
_____________________________________________________
Global Home Romania, este o firmă în schimbare de jocuri pe piață imobiliară din România ce se afla intr-o expansiune rapidă. Modelul hibrid între tehnologie și interacțiune umană alături de colaboratorii firmei, inspiră constant încredere. Având o abordare de marketing profesională și îndrăzneță a ridicat atenția asupra modului în care oamenii se gândesc la imobiliare.
Global Home Romania continuă să se dezvolte cu succes în domeniul imobiliar, reușind să adune constant parteneri și colaboratori de încredere. Cu sediul în București, Global Home Romania, a apărut ca o firmă de încredere imobiliară ce își propune constant să livreze servicii de calitate. S-a lansat ca un strălucitor ambasador al Bucureștiului și continuă să reprezinte cu succes diverse proprietăți din capitala României în colaborare cu cei mai sofisticați cumpărători și investitori.
Specificatii
Curent
Apa
Canalizare
Gaz
CATV
Telefon
Acces internet
Fibra optica
Centrala imobil
Incalzire pardoseala
Ventiloconvectoare
Izolatie Exterior
Vopsea lavabila
Var
Parchet
Gresie
Ferestre PVC
Usa intrare Metal
Usa interior Celulare
Usa interior Lemn
Terasa
Wc serviciu
Cosmin Vasilache
0745622521
Esti interesat de aceasta proprietate ?