















Apartament 2 camere 77 mp -2 grupuri sanitare | Blv Unirii | Bloc Stradal |
Bucuresti, Unirii
239.000€
Camere
2
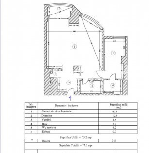
Suprafata utila
73 mp
Suprafata construita
92 mp
Etaj
Etaj 6
Bai
2
An constructie
1994
- ID:P17358
- Nr. camere:2
- Nr. dormitoare:1
- S. utila:73.00 mp
- S. balcoane:4.00 mp
- S. construita:92.00 mp
- Comp.:Semidecomandat
- Confort:1
- Etaj:Etaj 6
- Nr. bucatarii:1
- Nr. bai:2
- Nr. balcoane:1
- An constructie:1994
- Structura:Beton
- Tip imobil:Bloc
- Regim inaltime:S+P+9
- Clasa energetica:B
Descriere
Carmen Mihaila Zogoreanu ^ Global Home Romania ^ Real Estate ^ Imobiliare Unirii:
Apartament doua camere cu doua doua grupuri sanitare, unul dintre cele mai mari apartamente din zona, situat pe Blv Unirii, suprafata utila 73mp, plus balcon, insumand 77mp.
Imobilul dispune de suprafete generoase, luminoase, eficient compartimentat, mobilat si utilat complet.
A fost renovat in totalitate cu materiale de calitate superioara, inclusiv instalatiile, electrica si sanitara schimbate.
Apartamentul este amenajat complet, totul functional, mobilat si utilat modern.
Ideeal ca si propria locuinta sau pt. investitie.
Beneficiaza de toate avantajele zonei, fiind situat in zona centrala ,ofera acces rapid catre toate zonele de interes.
Multiple mijloace in comun, centre comerciale, institutii medicale si de invatamant, zone de relaxare.
Aceasta oferta va este prezentata de Agentia Global Home Romania, pt. detalii/vizionare sau alte oferte va rog contactat-ma telefonic.
_____________________________________________________
Global Home Romania, este o firmă în schimbare de jocuri pe piață imobiliară din România ce se afla intr-o expansiune rapidă. Modelul hibrid între tehnologie și interacțiune umană alături de colaboratorii firmei, inspiră constant încredere. Având o abordare de marketing profesională și îndrăzneță a ridicat atenția asupra modului în care oamenii se gândesc la imobiliare.
Global Home Romania continuă să se dezvolte cu succes în domeniul imobiliar, reușind să adune constant parteneri și colaboratori de încredere. Cu sediul în București, Global Home Romania, a apărut ca o firmă de încredere imobiliară ce își propune constant să livreze servicii de calitate. S-a lansat ca un strălucitor ambasador al Bucureștiului și continuă să reprezinte cu succes diverse proprietăți din capitala României în colaborare cu cei mai sofisticați cumpărători și investitori.
Citeste mai mult
Apartament doua camere cu doua doua grupuri sanitare, unul dintre cele mai mari apartamente din zona, situat pe Blv Unirii, suprafata utila 73mp, plus balcon, insumand 77mp.
Imobilul dispune de suprafete generoase, luminoase, eficient compartimentat, mobilat si utilat complet.
A fost renovat in totalitate cu materiale de calitate superioara, inclusiv instalatiile, electrica si sanitara schimbate.
Apartamentul este amenajat complet, totul functional, mobilat si utilat modern.
Ideeal ca si propria locuinta sau pt. investitie.
Beneficiaza de toate avantajele zonei, fiind situat in zona centrala ,ofera acces rapid catre toate zonele de interes.
Multiple mijloace in comun, centre comerciale, institutii medicale si de invatamant, zone de relaxare.
Aceasta oferta va este prezentata de Agentia Global Home Romania, pt. detalii/vizionare sau alte oferte va rog contactat-ma telefonic.
_____________________________________________________
Global Home Romania, este o firmă în schimbare de jocuri pe piață imobiliară din România ce se afla intr-o expansiune rapidă. Modelul hibrid între tehnologie și interacțiune umană alături de colaboratorii firmei, inspiră constant încredere. Având o abordare de marketing profesională și îndrăzneță a ridicat atenția asupra modului în care oamenii se gândesc la imobiliare.
Global Home Romania continuă să se dezvolte cu succes în domeniul imobiliar, reușind să adune constant parteneri și colaboratori de încredere. Cu sediul în București, Global Home Romania, a apărut ca o firmă de încredere imobiliară ce își propune constant să livreze servicii de calitate. S-a lansat ca un strălucitor ambasador al Bucureștiului și continuă să reprezinte cu succes diverse proprietăți din capitala României în colaborare cu cei mai sofisticați cumpărători și investitori.
Specificatii
Curent
Apa
Canalizare
Gaz
Termoficare
Calorifere
Aer conditionat
Vopsea lavabila
Faianta
Parchet
Gresie
Ferestre Termopan
Usa intrare Metal
Usa interior Lemn
Wc serviciu
Debara
Bucatarie Mobilata
Bucatarie Utilata
Apometre
Interfon
Lift
Carmen Mihaila Zogoreanu
0749881599
Esti interesat de aceasta proprietate ?