


































Aceasta proprietate nu mai este activa! Pentru oferte similare contactati agentul
Cornu Villas - Valea Prahovei 4 Camere - Casa Individuala Parter + 450MP Teren
Cornu de Jos (Cornu)
190.000€
Camere
4
Suprafata utila
93 mp
Suprafata construita
120 mp
Bai
2
An constructie
2025
- ID:P16394
- Nr. camere:4
- Nr. dormitoare:3
- S. utila:93.00 mp
- S. construita:120.00 mp
- S. teren:450.00 mp
- Nr. bucatarii:1
- Nr. bai:2
- Nr. parcari:2
- Front stradal:30.00 m
- Nr. fronturi:2
- An constructie:2025
- An renovare:2025
- Structura rezistenta:Caramida
- Orientare:Est-Vest
- Clasa energetica:A
Descriere
Laurentiu Situ ^ Global Home Romania ^ Real Estate Agency ^ Imobiliare:
Casa Individuala CORNU DE JOS|Ultracentral| Parter cu 4 cam.|Valea Prahovei|
Localizare:
- Casa se afla in Cornu De Jos, jud. Prahova (Valea Prahovei), pe Str. Lacului Nr. 8 . Cornu de Jos se afla la 100 km de Bucuresti si 75 Km de Brasov, langa orasul Campina.
- Proprietatea ( Parter cu 4 camere ) este situata in cadrul unui complex rezidential intim (la 200 m de centrul localitatii ) compus din 4 vile individuale, fiecare avand curte proprie, drum de acces cat si toate utilitatile racordate - instalate. Complexul este finalizat in anul 2024-2025, proprietatile fiind la prima vanzare - utilizare, avand toate accesoriile si echipamentele achizitonate in garantia producatorului.
Descriere proprietate:
- Casa este dispusa pe un teren de 450 mp, cu o deschidere de 30ML, din care 340 mp este teren liber.
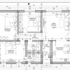
- Spatiul din interior este decomandat, cu 4 camere ( 1 living, 3 dormitoare – din care cel matrimonial dispune de baie proprie ), 1 bucatarie ( spatioasa si luminoasa ), 2 bai ( una dispune de cada si cealalta de cabina de dus ).
- Suprafata totala a apartamentului este de 93 mp iar curtea are 340 mp.
- In fata casei este amenajata parcarea, aceasta fiind accesata direct din str. Lacului.
- Proprietatea beneficiaza de un sistem de incalzire eficient datorita tehnologiei multizonale a incalzirii prin pardoseala.
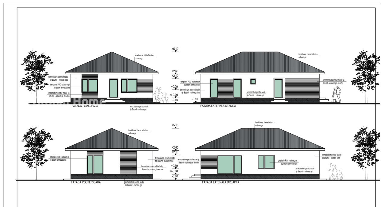
- Casa a fost finalizata anul acesta -2025- pe structura de beton si caramida porotherm.
CONTACT: LAURENTIU SITU
MOBIL: 0728.023.671
E-MAIL : laurentiu@globalhome.ro
WEB: www.globalhome.ro
_____________________________________________________
Global Home Romania, este o firmă în schimbare de jocuri pe piață imobiliară din România ce se afla intr-o expansiune rapidă. Modelul hibrid între tehnologie și interacțiune umană alături de colaboratorii firmei, inspiră constant încredere. Având o abordare de marketing profesională și îndrăzneță a ridicat atenția asupra modului în care oamenii se gândesc la imobiliare.
Global Home Romania continuă să se dezvolte cu succes în domeniul imobiliar, reușind să adune constant parteneri și colaboratori de încredere. Cu sediul în București, Global Home Romania, a apărut ca o firmă de încredere imobiliară ce își propune constant să livreze servicii de calitate. S-a lansat ca un strălucitor ambasador al Bucureștiului și continuă să reprezinte cu succes diverse proprietăți din capitala României în colaborare cu cei mai sofisticați cumpărători și investitori.
Citeste mai mult
Casa Individuala CORNU DE JOS|Ultracentral| Parter cu 4 cam.|Valea Prahovei|
Localizare:
- Casa se afla in Cornu De Jos, jud. Prahova (Valea Prahovei), pe Str. Lacului Nr. 8 . Cornu de Jos se afla la 100 km de Bucuresti si 75 Km de Brasov, langa orasul Campina.
- Proprietatea ( Parter cu 4 camere ) este situata in cadrul unui complex rezidential intim (la 200 m de centrul localitatii ) compus din 4 vile individuale, fiecare avand curte proprie, drum de acces cat si toate utilitatile racordate - instalate. Complexul este finalizat in anul 2024-2025, proprietatile fiind la prima vanzare - utilizare, avand toate accesoriile si echipamentele achizitonate in garantia producatorului.
Descriere proprietate:
- Casa este dispusa pe un teren de 450 mp, cu o deschidere de 30ML, din care 340 mp este teren liber.
- Spatiul din interior este decomandat, cu 4 camere ( 1 living, 3 dormitoare – din care cel matrimonial dispune de baie proprie ), 1 bucatarie ( spatioasa si luminoasa ), 2 bai ( una dispune de cada si cealalta de cabina de dus ).
- Suprafata totala a apartamentului este de 93 mp iar curtea are 340 mp.
- In fata casei este amenajata parcarea, aceasta fiind accesata direct din str. Lacului.
- Proprietatea beneficiaza de un sistem de incalzire eficient datorita tehnologiei multizonale a incalzirii prin pardoseala.
- Casa a fost finalizata anul acesta -2025- pe structura de beton si caramida porotherm.
CONTACT: LAURENTIU SITU
MOBIL: 0728.023.671
E-MAIL : laurentiu@globalhome.ro
WEB: www.globalhome.ro
_____________________________________________________
Global Home Romania, este o firmă în schimbare de jocuri pe piață imobiliară din România ce se afla intr-o expansiune rapidă. Modelul hibrid între tehnologie și interacțiune umană alături de colaboratorii firmei, inspiră constant încredere. Având o abordare de marketing profesională și îndrăzneță a ridicat atenția asupra modului în care oamenii se gândesc la imobiliare.
Global Home Romania continuă să se dezvolte cu succes în domeniul imobiliar, reușind să adune constant parteneri și colaboratori de încredere. Cu sediul în București, Global Home Romania, a apărut ca o firmă de încredere imobiliară ce își propune constant să livreze servicii de calitate. S-a lansat ca un strălucitor ambasador al Bucureștiului și continuă să reprezinte cu succes diverse proprietăți din capitala României în colaborare cu cei mai sofisticați cumpărători și investitori.
Video
Specificatii
Curent
Apa
Canalizare
Gaz
CATV
Telefon
Acces internet
Fibra optica
Centrala proprie
Incalzire pardoseala
Izolatie Exterior
Vopsea lavabila
Var
Parchet
Gresie
Ferestre PVC
Ferestre Termopan
Usa intrare Metal
Usa interior Celulare
Usa interior Lemn
Spatiu depozitare
Bucatarie Partial utilata
Bucatarie Nemobilata
Contor gaz
Nemobilat
Curte
Gradina
Laurentiu Situ
0728023671
Esti interesat de aceasta proprietate ?