








Apartament 3 cam 61MP | Calea Grivitei | Metrou Grivita |
Bucuresti
130.000€
Camere
3
Suprafata utila
57.80 mp
Suprafata construita
69.36 mp
Etaj
Etaj 3
Bai
1
An constructie
1964
- ID:P15682
- Nr. camere:3
- Nr. dormitoare:2
- S. utila:57.80 mp
- S. balcoane:3.30 mp
- S. construita:69.36 mp
- Comp.:Semidecomandat
- Etaj:Etaj 3
- Nr. bucatarii:1
- Nr. bai:1
- Nr. balcoane:1
- An constructie:1964
- Structura:Beton
- Tip imobil:Bloc
- Regim inaltime:P+7
Descriere
Alexandru Popovici ^ Global Home Romania ^ RealEstate ^ Imobiliare:
Apartament 3 cam 61MP | Calea Grivitei | Metrou Grivita |
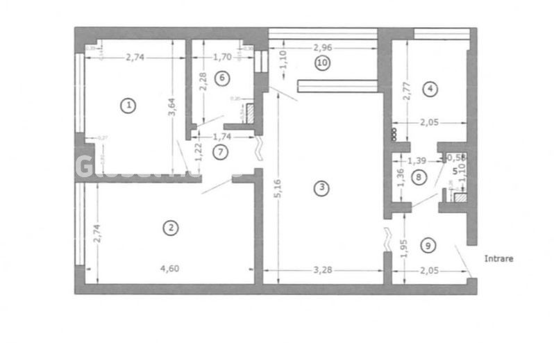
De vânzare apartament cu 3 camere, situat într-un bloc reabilitat termic (an construcție 1964), la etajul 3 dintr-o zonă liniștită. Suprafața totală este de 61,1 mp și include balcon și debara.
Apartamentul este renovat și se vinde parțial mobilat:
• Bucătărie mobilată, dotată cu frigider, cuptor și plită electrice
• Baie echipată cu mașină de spălat
• Aer condiționat instalat
📍 Locație excelentă: lângă gură de metrou Grivița, stație de autobuz, magazine (Mega Image, Carrefour, Lidl), spitale (CF2, Regina Maria, Medlife), farmacii, bănci, săli de sport, benzinării, școli și grădinițe de stat.
🌳 Spații verzi și parcuri în apropiere:
✅ Parcuri mai apropiate:
• Parcul Nicolae Iorga (Grivița) – mic parc de cartier cu loc de joacă și bănci, la 5-7 min de mers pe jos.
• Parcul Basarab – spațiu verde mic, ideal pentru plimbări scurte.
✅ Parcuri mai mari (10-15 min):
• Parcul Kiseleff – frumos amenajat, cu alei largi, locuri de joacă și cafenele, la ~15 min pe jos sau 1-2 stații cu autobuzul/tramvaiul.
• Parcul Regina Maria (fost 1 Mai) – mic parc în zona 1 Mai/Grivița, la 12-15 min de mers pe jos.
✅ La distanță puțin mai mare, dar cu acces rapid:
• Parcul Herăstrău (Regele Mihai I) – la 2-3 stații de metrou (Grivița -> 1 Mai -> Aviatorilor); mare, ideal pentru jogging, bicicletă și terase.
Ideal pentru o familie care își dorește acces rapid la metrou, facilități complete și zone verzi în apropiere!
📞 Pentru detalii și programare vizionare: 0736376006
_____________________________________________________
Global Home Romania, este o firmă în schimbare de jocuri pe piață imobiliară din România ce se afla intr-o expansiune rapidă. Modelul hibrid între tehnologie și interacțiune umană alături de colaboratorii firmei, inspiră constant încredere. Având o abordare de marketing profesională și îndrăzneță a ridicat atenția asupra modului în care oamenii se gândesc la imobiliare.
Global Home Romania continuă să se dezvolte cu succes în domeniul imobiliar, reușind să adune constant parteneri și colaboratori de încredere. Cu sediul în București, Global Home Romania, a apărut ca o firmă de încredere imobiliară ce își propune constant să livreze servicii de calitate. S-a lansat ca un strălucitor ambasador al Bucureștiului și continuă să reprezinte cu succes diverse proprietăți din capitala României în colaborare cu cei mai sofisticați cumpărători și investitori.
Citeste mai mult
Apartament 3 cam 61MP | Calea Grivitei | Metrou Grivita |
De vânzare apartament cu 3 camere, situat într-un bloc reabilitat termic (an construcție 1964), la etajul 3 dintr-o zonă liniștită. Suprafața totală este de 61,1 mp și include balcon și debara.
Apartamentul este renovat și se vinde parțial mobilat:
• Bucătărie mobilată, dotată cu frigider, cuptor și plită electrice
• Baie echipată cu mașină de spălat
• Aer condiționat instalat
📍 Locație excelentă: lângă gură de metrou Grivița, stație de autobuz, magazine (Mega Image, Carrefour, Lidl), spitale (CF2, Regina Maria, Medlife), farmacii, bănci, săli de sport, benzinării, școli și grădinițe de stat.
🌳 Spații verzi și parcuri în apropiere:
✅ Parcuri mai apropiate:
• Parcul Nicolae Iorga (Grivița) – mic parc de cartier cu loc de joacă și bănci, la 5-7 min de mers pe jos.
• Parcul Basarab – spațiu verde mic, ideal pentru plimbări scurte.
✅ Parcuri mai mari (10-15 min):
• Parcul Kiseleff – frumos amenajat, cu alei largi, locuri de joacă și cafenele, la ~15 min pe jos sau 1-2 stații cu autobuzul/tramvaiul.
• Parcul Regina Maria (fost 1 Mai) – mic parc în zona 1 Mai/Grivița, la 12-15 min de mers pe jos.
✅ La distanță puțin mai mare, dar cu acces rapid:
• Parcul Herăstrău (Regele Mihai I) – la 2-3 stații de metrou (Grivița -> 1 Mai -> Aviatorilor); mare, ideal pentru jogging, bicicletă și terase.
Ideal pentru o familie care își dorește acces rapid la metrou, facilități complete și zone verzi în apropiere!
📞 Pentru detalii și programare vizionare: 0736376006
_____________________________________________________
Global Home Romania, este o firmă în schimbare de jocuri pe piață imobiliară din România ce se afla intr-o expansiune rapidă. Modelul hibrid între tehnologie și interacțiune umană alături de colaboratorii firmei, inspiră constant încredere. Având o abordare de marketing profesională și îndrăzneță a ridicat atenția asupra modului în care oamenii se gândesc la imobiliare.
Global Home Romania continuă să se dezvolte cu succes în domeniul imobiliar, reușind să adune constant parteneri și colaboratori de încredere. Cu sediul în București, Global Home Romania, a apărut ca o firmă de încredere imobiliară ce își propune constant să livreze servicii de calitate. S-a lansat ca un strălucitor ambasador al Bucureștiului și continuă să reprezinte cu succes diverse proprietăți din capitala României în colaborare cu cei mai sofisticați cumpărători și investitori.
Specificatii
Curent
Apa
Canalizare
Gaz
Termoficare
Aer conditionat
Izolatie Exterior
Izolatie Interior
Vopsea lavabila
Parchet
Gresie
Ferestre PVC
Usa intrare Metal
Usa interior Celulare
Bucatarie Mobilata
Complet mobilat
Alexandru Popovici
0736376006
Esti interesat de aceasta proprietate ?